Back to Oak Framed Complexes
Oak Framed Complexes - WS00146
This is a building we have previously constructed which you may want to use as a starting point for your design. All our buildings are designed and manufactured to your individual specifications.
Details
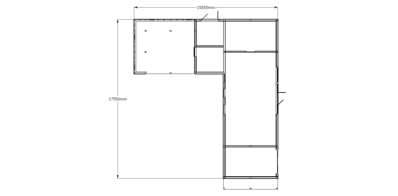
This oak framed complex was designed for a customer in Kent and is formed of three different frames. The first frame is a two bay open garage with an enclosed store to the side. The second frame is a three bay link with a set of garage doors to the rear, attached to a three bay building with a solid single door to the front and four full length opening garden room windows to the rear, along with a set of garage doors. To the right hand end there is also an open logstore.
Dimensions
| G/F Area (sq m) | 171.66 |
| Total Area (sq m) | 171.66 |
| Length (m) | 15.855 |
| Depth (m) | 18.755 |
| Ridge Height (m) | 5 |
| Roof Pitch (deg) | 40 |
| Number of Bays | 8 |
| Location | Kent |





