Back to Four Bays and Upwards
Four Bays and Upwards - WS00145
Also in: Oak Framed Complexes
This is a building we have previously constructed which you may want to use as a starting point for your design. All our buildings are designed and manufactured to your individual specifications.
Details
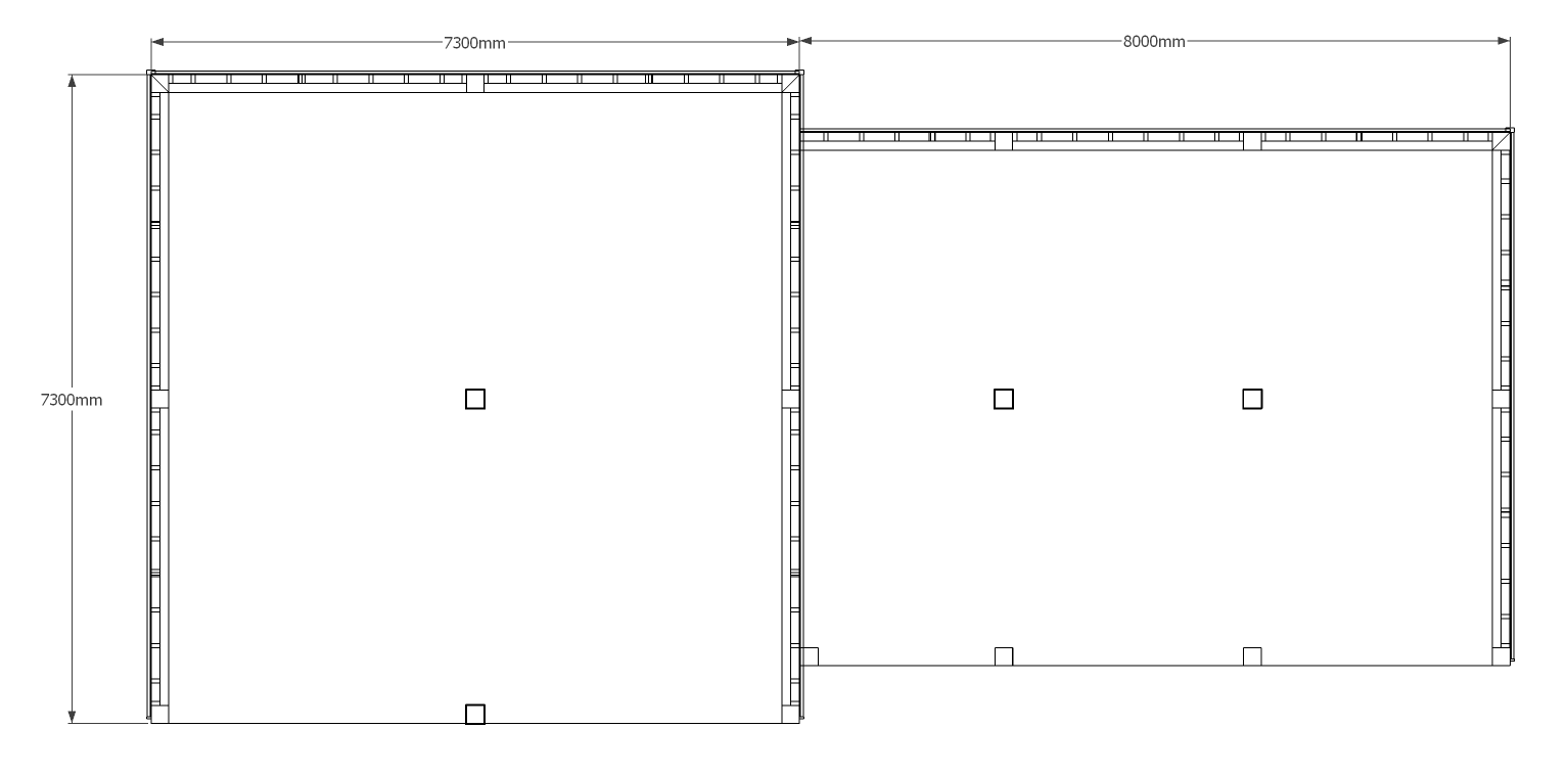
This building comprises of two frames. The first is a large square frame with hipped roof and a dovecote at the top. The second frame attached to it comprises of 3 open bays, 2 for cars and the other slightly smaller for garden machinery or motorbikes.
Dimensions
| G/F Area (sq m) | 101.3 |
| Total Area (sq m) | 101.3 |
| Length (m) | 15.3 |
| Depth (m) | 7.3 |
| Ridge Height (m) | 5.1 |
| Roof Pitch (deg) | 45 |
| Number of Bays | 5 |
| Location | East Sussex |




