Back to Oak Framed Complexes
Oak Framed Complexes - WS00142
This is a building we have previously constructed which you may want to use as a starting point for your design. All our buildings are designed and manufactured to your individual specifications.
Details
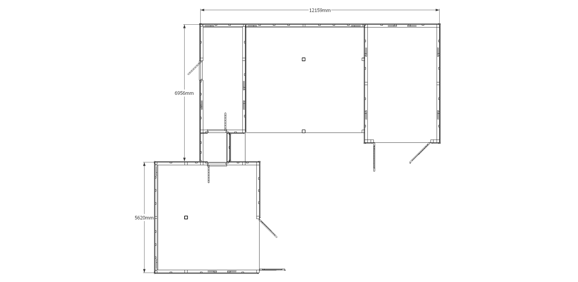
An ‘L’ shaped garage complex that offers 2 seperate enclosed garage bays, one with workshop space as well. Both are enclosed using garage doors. There are 2 open carport spaces and a seperate workshop / store with a single door for access.
Dimensions
| G/F Area (sq m) | 105.03 |
| Total Area (sq m) | 105.03 |
| Length (m) | 12.62 |
| Depth (m) | 14.46 |
| Ridge Height (m) | 4 |
| Roof Pitch (deg) | 40 |
| Number of Bays | 8 |
| Location | Hampshire |





