Back to Four Bays and Upwards
Four Bays and Upwards - WS00139
This is a building we have previously constructed which you may want to use as a starting point for your design. All our buildings are designed and manufactured to your individual specifications.
Details
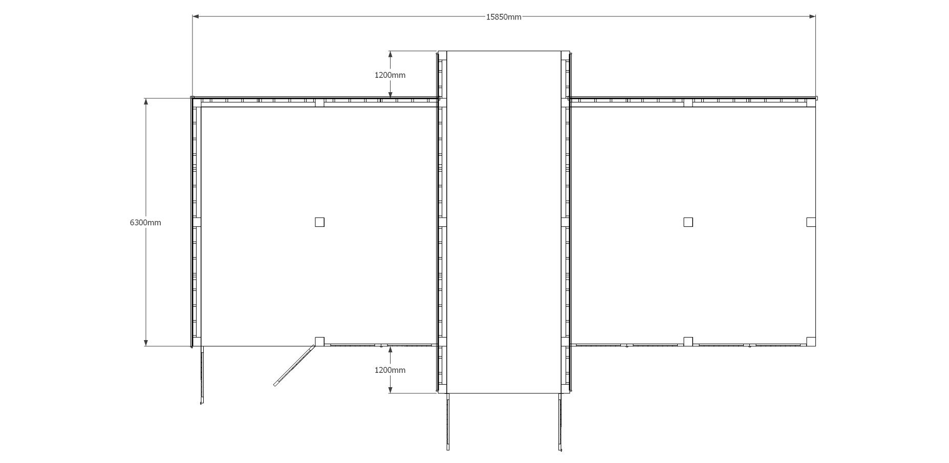
This 5 bay garage block is attached to an existing building one end and from the front looks like five garage bays all with garage doors. In fact the centre bay has a projecting barn entance on both the front and the rear and is in fact a drive through.
Dimensions
| G/F Area (sq m) | 107 |
| Total Area (sq m) | 107 |
| Length (m) | 15.85 |
| Depth (m) | 7.5 |
| Ridge Height (m) | 7 |
| Roof Pitch (deg) | 50 |
| Number of Bays | 5 |
| Location | Gloucestershire |






