Oak Framed Houses - WS00138
This is a building we have previously constructed which you may want to use as a starting point for your design. All our buildings are designed and manufactured to your individual specifications.
Details
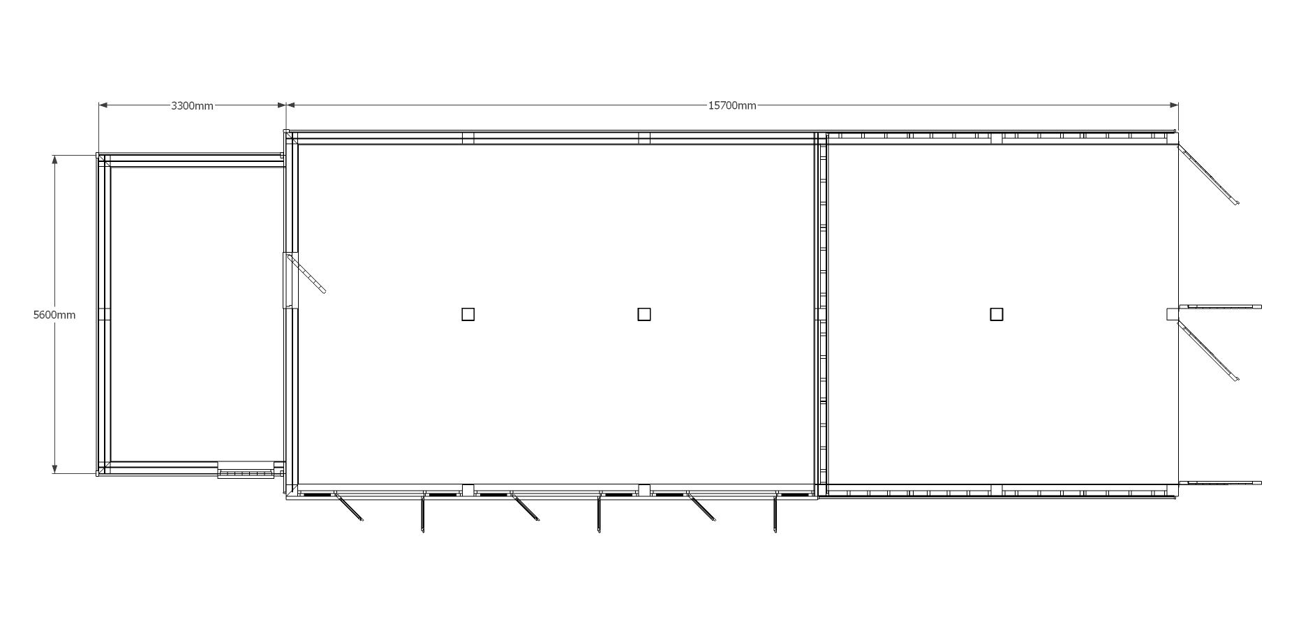
This oak framed house was designed for a customer in Herefordshire and is comprised of two different frames. The first frame has five bays, three of which have full length glazing to the front, and the other two are enclosed garage bays, accessed via two sets of garage doors to the right hand side. The three glazed bays have three sets of opening garden room windows to the front, and a barn entrance with a gable roof end with four full length windows. The roof has trimming for two rooflights. The smaller frame to the left hand end is a single bay with a glazed gable end to the left and a half glazed door to the front, as well as a mullion window.
Dimensions
| G/F Area (sq m) | 120.24 |
| F/F Area (sq m) | 74.96 |
| Total Area (sq m) | 195.2 |
| Length (m) | 19 |
| Depth (m) | 6.4 |
| Ridge Height (m) | 5.7 |
| Roof Pitch (deg) | 45 |
| Number of Bays | 6 |
| Location | Herefordshire |






