Back to Home Leisure Buildings
Home Leisure Buildings - WS00136
This is a building we have previously constructed which you may want to use as a starting point for your design. All our buildings are designed and manufactured to your individual specifications.
Details
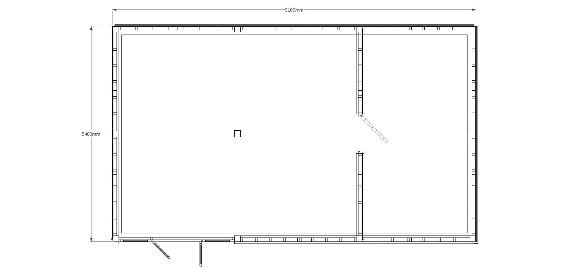
A 3 bay enclosed leisure building split into two rooms with a single door between the two. One bay has a full height glazed unit with central doors and there are three 3 light casement windows.
Dimensions
| G/F Area (sq m) | 49.14 |
| Total Area (sq m) | 49.14 |
| Length (m) | 9.1 |
| Depth (m) | 5.4 |
| Ridge Height (m) | 4.7 |
| Roof Pitch (deg) | 40 |
| Number of Bays | 3 |
| Location | Surrey |





