Back to Two Bay Oak Garages
Two Bay Oak Garages - WS00134
This is a building we have previously constructed which you may want to use as a starting point for your design. All our buildings are designed and manufactured to your individual specifications.
Details
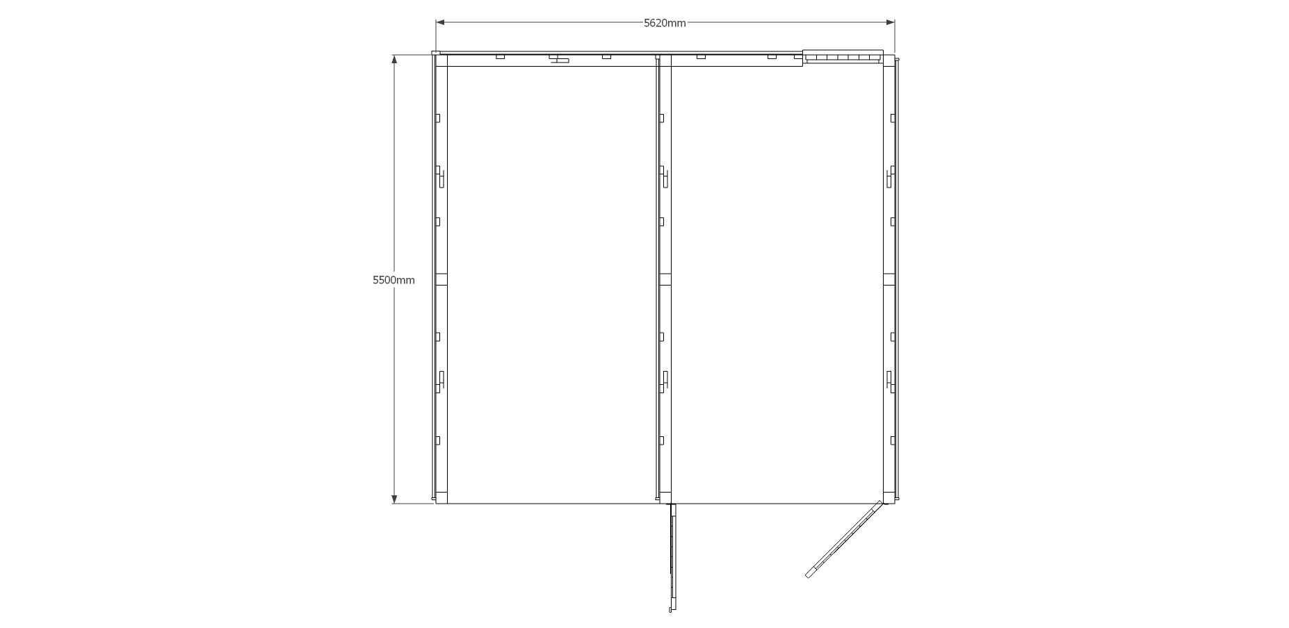
A two bay garage with barn hip ends. On bay is open at the front and the other bay is secured with garage doors. At the back of the enclosed bay is a single door and a 2 light casement window.
Dimensions
| G/F Area (sq m) | 30.91 |
| Total Area (sq m) | 30.91 |
| Length (m) | 5.62 |
| Depth (m) | 5.5 |
| Ridge Height (m) | 4.4 |
| Roof Pitch (deg) | 36 |
| Number of Bays | 2 |
| Location | Surrey |






