Back to Oak Barns
Oak Barns - WS00127
Also in: Oak Framed Complexes
Also in: Stables and Barns
This is a building we have previously constructed which you may want to use as a starting point for your design. All our buildings are designed and manufactured to your individual specifications.
Details
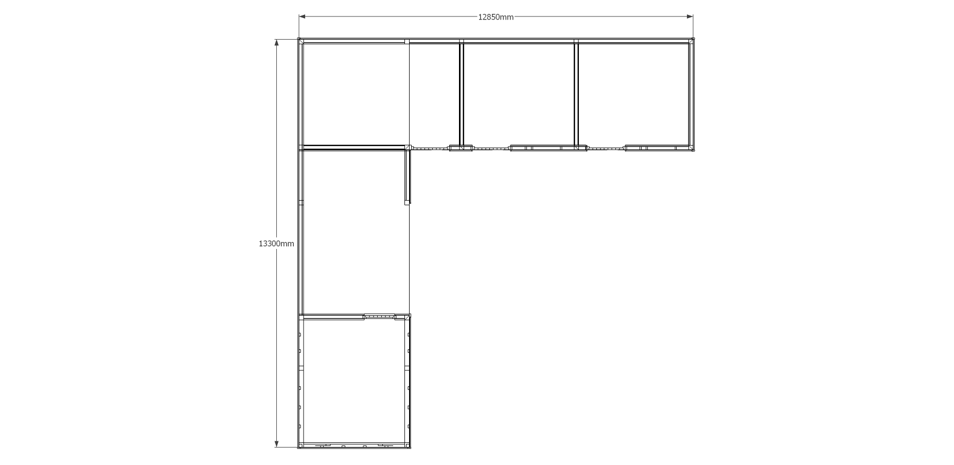
An ‘L’ shaped complex comprising of 3 stables, a tack room and an open area for hay and straw which has a higher eaves height to accomodate a small tractor.
Dimensions
| G/F Area (sq m) | 81.36 |
| Total Area (sq m) | 81.36 |
| Length (m) | 12.85 |
| Depth (m) | 13.3 |
| Ridge Height (m) | 4 |
| Roof Pitch (deg) | 30 |
| Number of Bays | 8 |
| Location | Wiltshire |





