Back to Four Bays And Upwards with Upper Floors
Four Bays And Upwards with Upper Floors - WS00121
Also in: Oak Framed Complexes
This is a building we have previously constructed which you may want to use as a starting point for your design. All our buildings are designed and manufactured to your individual specifications.
Details
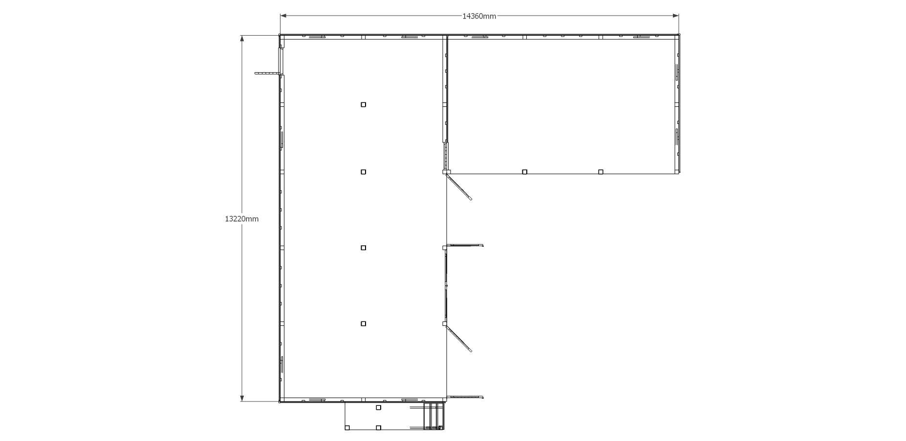
An ‘L’ shaped complex comprising of a 5 bay garage with upper floor and a 3 bay open car shelter. The five bay garage is secured with 3 sets of garage doors and partitions containing single doors. The first floor is accessed via an oak external staircase.
Dimensions
| G/F Area (sq m) | 121.12 |
| F/F Area (sq m) | 52.88 |
| Total Area (sq m) | 174 |
| Length (m) | 14.23 |
| Depth (m) | 14.36 |
| Ridge Height (m) | 5.4 |
| Roof Pitch (deg) | 45 |
| Number of Bays | 8 |
| Location | Clwyd |






