Back to Four Bays And Upwards with Upper Floors
Four Bays And Upwards with Upper Floors - WS00120
This is a building we have previously constructed which you may want to use as a starting point for your design. All our buildings are designed and manufactured to your individual specifications.
Details
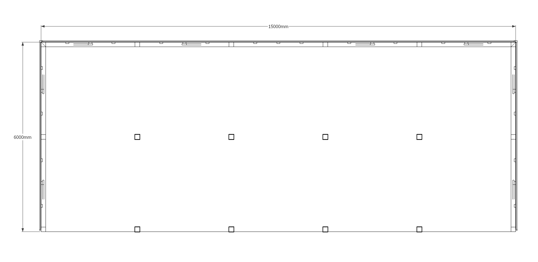
5 bay open fronted garage with a first floor accessed by an internal staircase. On the first floor there are 2 smaller dormers, one central full bay dormer with barn doors on the front and 3 rooflights.
Dimensions
| G/F Area (sq m) | 90 |
| F/F Area (sq m) | 60 |
| Total Area (sq m) | 150 |
| Length (m) | 15 |
| Depth (m) | 6 |
| Ridge Height (m) | 5.5 |
| Roof Pitch (deg) | 45 |
| Number of Bays | 5 |
| Location | East Sussex |





