Back to Three Bay Oak Garages
Three Bay Oak Garages - WS00111
This is a building we have previously constructed which you may want to use as a starting point for your design. All our buildings are designed and manufactured to your individual specifications.
Details
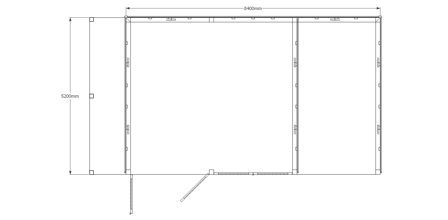
3 bay oak framed garage with slightly higher eaves height to accommodate a camper van. 2 bays are secured with garage doors and one bay is left open.
Dimensions
| G/F Area (sq m) | 43.68 |
| Total Area (sq m) | 43.68 |
| Length (m) | 8.4 |
| Depth (m) | 5.2 |
| Ridge Height (m) | 4.9 |
| Roof Pitch (deg) | 40 |
| Number of Bays | 3 |
| Location | Berkshire |




