Back to Three Bay Oak Garages
Three Bay Oak Garages - WS00110
This is a building we have previously constructed which you may want to use as a starting point for your design. All our buildings are designed and manufactured to your individual specifications.
Details
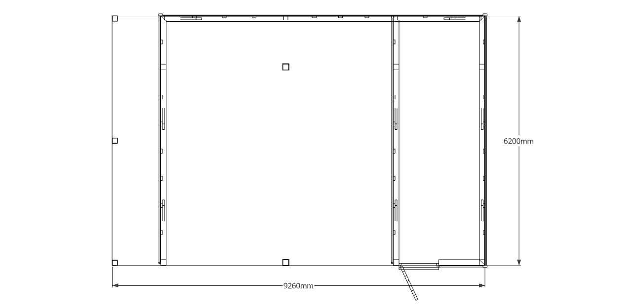
Three bay garage with logstore on one end. Two open car parking bays and one bay enclosed to form a secure workshop.
Dimensions
| G/F Area (sq m) | 57.41 |
| Total Area (sq m) | 57.41 |
| Length (m) | 9.26 |
| Depth (m) | 6.2 |
| Ridge Height (m) | 3.85 |
| Roof Pitch (deg) | 30 |
| Number of Bays | 3 |
| Location | North Yorkshire |



