Back to Four Bays and Upwards
Four Bays and Upwards - WS00107
This is a building we have previously constructed which you may want to use as a starting point for your design. All our buildings are designed and manufactured to your individual specifications.
Details
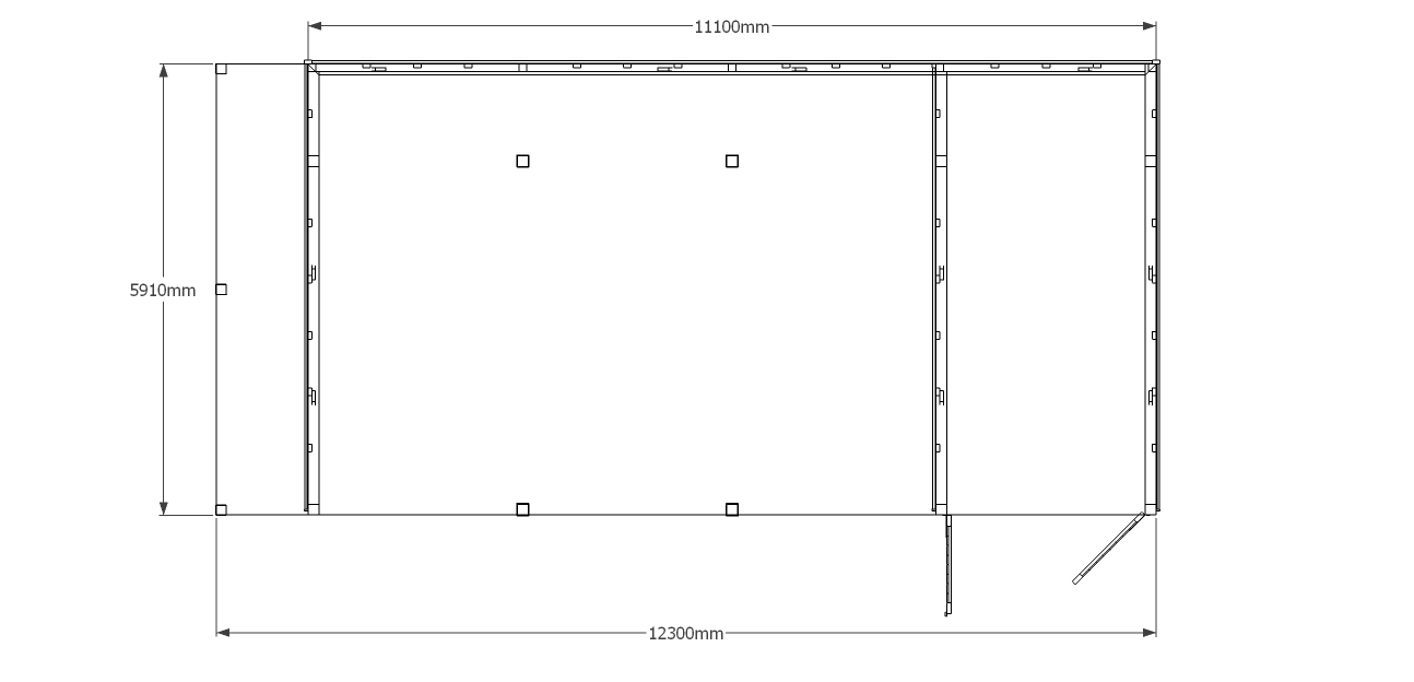
Four bay oak framed building with one bay enclosed with a partition and a pair of garage doors. The other 3 bays are open and one bay has a higher eaves height to accommodate a taller vehicle. There is also a logstore on one end.
Dimensions
| G/F Area (sq m) | 72.69 |
| Total Area (sq m) | 72.69 |
| Length (m) | 12.3 |
| Depth (m) | 5.91 |
| Ridge Height (m) | 4.4 |
| Roof Pitch (deg) | 40 |
| Number of Bays | 4 |
| Location | Kent |




