Back to Four Bays And Upwards with Upper Floors
Four Bays And Upwards with Upper Floors - WS00103
This is a building we have previously constructed which you may want to use as a starting point for your design. All our buildings are designed and manufactured to your individual specifications.
Details
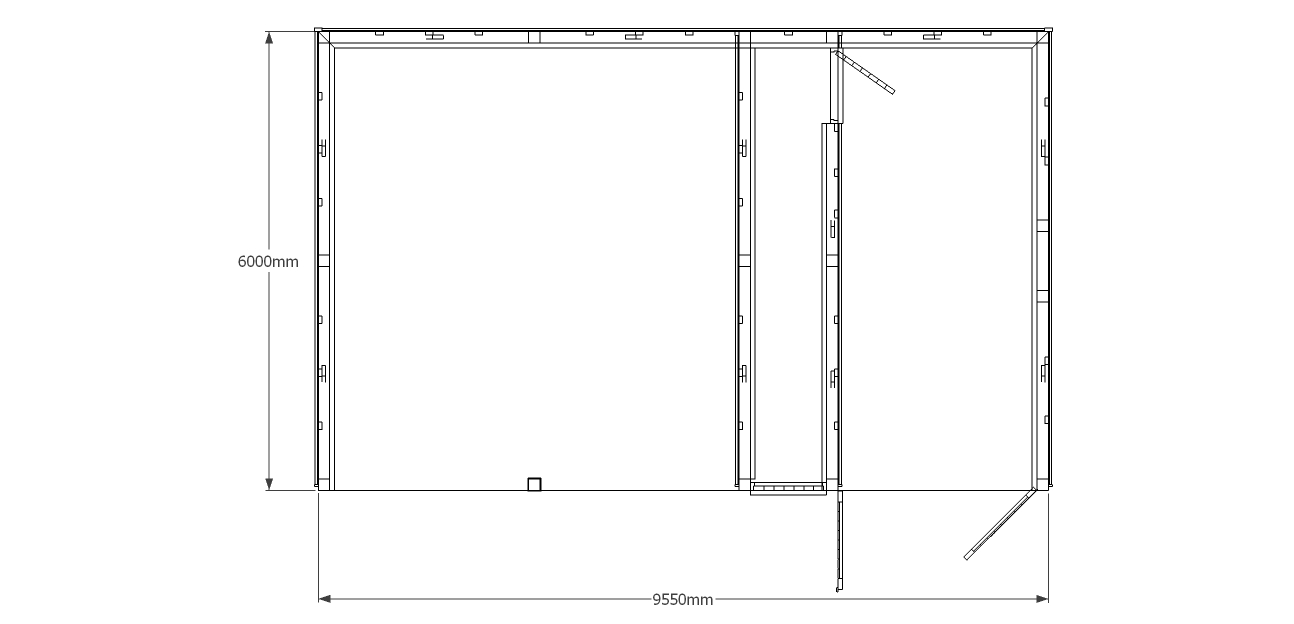
Oak framed garage block with two open car bays and one car bay enclosed with garage doors. A narrow bay between the 2 houses the internal staircase which accesses the first floor space.
Dimensions
| G/F Area (sq m) | 57.3 |
| F/F Area (sq m) | 38.2 |
| Total Area (sq m) | 95.5 |
| Length (m) | 9.55 |
| Depth (m) | 6 |
| Ridge Height (m) | 5.4 |
| Roof Pitch (deg) | 45 |
| Number of Bays | 4 |
| Location | Isle of Wight |




