Back to Four Bays And Upwards with Upper Floors
Four Bays And Upwards with Upper Floors - WS00099
Also in: Oak Framed Complexes
This is a building we have previously constructed which you may want to use as a starting point for your design. All our buildings are designed and manufactured to your individual specifications.
Details
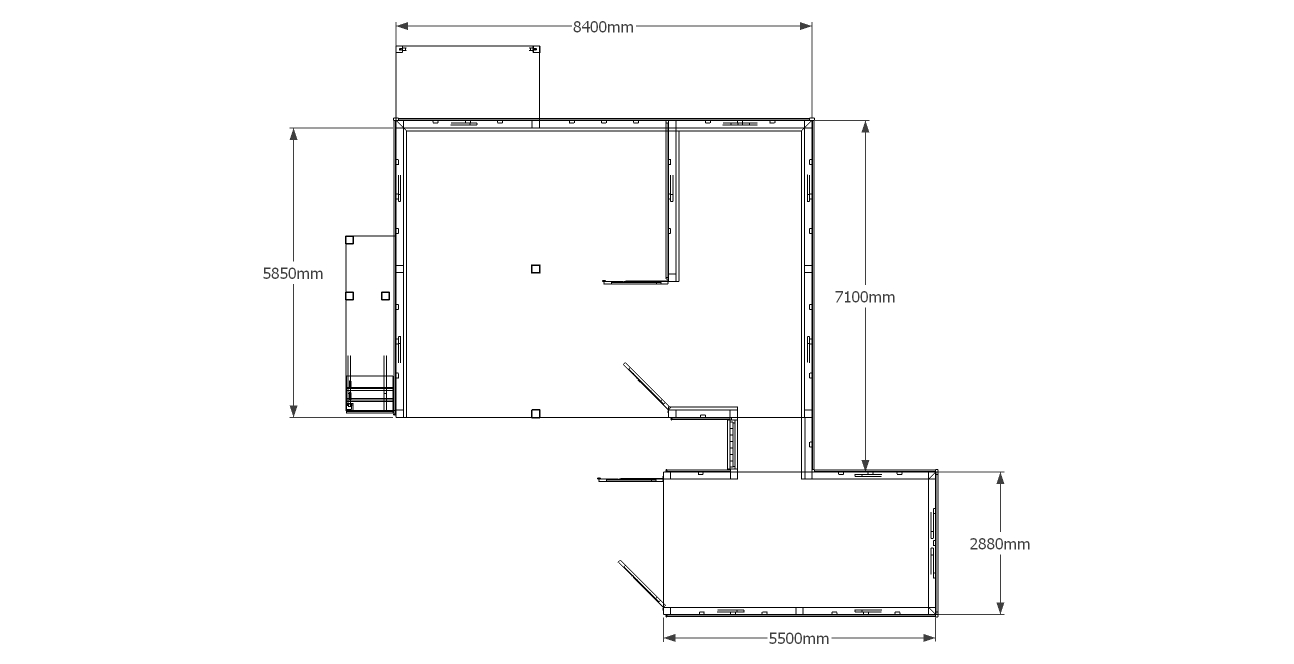
An oak framed complex comprising of a 3 bay garage with a first floor accessed by an external oak staircase, 2 bays open parking spaces and the third is enclosed as a storage / workshop area with access via a pair of garage doors. A small link takes you through to a single storey garage secured with garage doors.
Dimensions
| G/F Area (sq m) | 71.8 |
| F/F Area (sq m) | 33.6 |
| Total Area (sq m) | 105.4 |
| Length (m) | 11 |
| Depth (m) | 11.18 |
| Ridge Height (m) | 5.5 |
| Roof Pitch (deg) | 45 |
| Number of Bays | 4 |
| Location | Surrey |



