Back to Oak Framed Complexes
Oak Framed Complexes - WS00093
This is a building we have previously constructed which you may want to use as a starting point for your design. All our buildings are designed and manufactured to your individual specifications.
Details
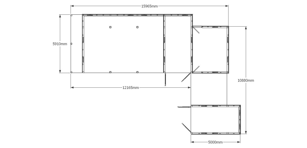
An ‘L’ shaped oak framed complex offering 2 secure parking spaces with garage doors, 3 open parking spaces one with a higher eaves height, a drive through and a secure workshop / store with a single door access to the rear.
Dimensions
| G/F Area (sq m) | 115.99 |
| Total Area (sq m) | 115.99 |
| Length (m) | 17.305 |
| Depth (m) | 12.08 |
| Ridge Height (m) | 4.4 |
| Roof Pitch (deg) | 40 |
| Number of Bays | 7 |
| Location | Kent |





