Back to Four Bays and Upwards
Four Bays and Upwards - WS00092
Also in: Wooden Garage
This is a building we have previously constructed which you may want to use as a starting point for your design. All our buildings are designed and manufactured to your individual specifications.
Details
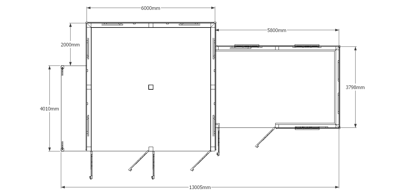
2 bay oak garage with garage doors and small logstore on side connected to a two bay enclosed workshop area with garage doors and a single pane window.
Dimensions
| G/F Area (sq m) | 53.09 |
| Total Area (sq m) | 53.09 |
| Length (m) | 13.005 |
| Depth (m) | 6.01 |
| Ridge Height (m) | 5 |
| Roof Pitch (deg) | 40 |
| Number of Bays | 4 |
| Location | Oxfordshire |



