Back to Two Bay Oak Garages
Two Bay Oak Garages - WS00090
This is a building we have previously constructed which you may want to use as a starting point for your design. All our buildings are designed and manufactured to your individual specifications.
Details
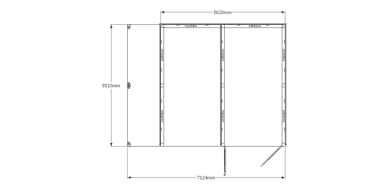
Two bay oak framed garage with one open parking space and one secured with garage doors. It also has a logstore on the side.
Dimensions
| G/F Area (sq m) | 39.16 |
| Total Area (sq m) | 39.16 |
| Length (m) | 7.12 |
| Depth (m) | 5.5 |
| Ridge Height (m) | 4.7 |
| Roof Pitch (deg) | 40 |
| Number of Bays | 2 |
| Location | Surrey |



