Back to Oak Framed Car Ports
Oak Framed Car Ports - WS00085
Also in: Two Bay Oak Garages
This is a building we have previously constructed which you may want to use as a starting point for your design. All our buildings are designed and manufactured to your individual specifications.
Details
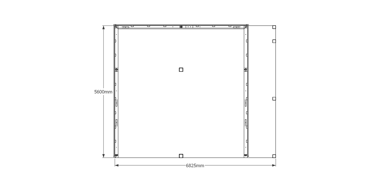
2 bay oak framed open garage with a log store to the right.
Dimensions
| G/F Area (sq m) | 38.22 |
| Total Area (sq m) | 38.22 |
| Length (m) | 6.825 |
| Depth (m) | 5.6 |
| Ridge Height (m) | 3.85 |
| Roof Pitch (deg) | 37 |
| Number of Bays | 2 |
| Location | Hertfordshire |



