Back to Four Bays And Upwards with Upper Floors
Four Bays And Upwards with Upper Floors - WS00080
This is a building we have previously constructed which you may want to use as a starting point for your design. All our buildings are designed and manufactured to your individual specifications.
Details
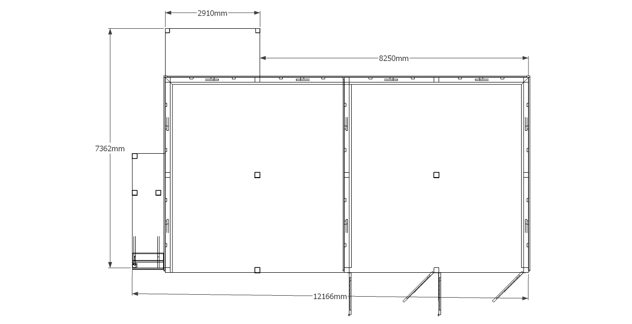
Four bay oak framed garage with external oak staircase leading up to the first floor space that has 4 rooflights. There are two open car bays and two enclosed with garage doors.
Dimensions
| G/F Area (sq m) | 66.9 |
| F/F Area (sq m) | 44.6 |
| Total Area (sq m) | 111.5 |
| Length (m) | 12.16 |
| Depth (m) | 7.5 |
| Ridge Height (m) | 5.5 |
| Roof Pitch (deg) | 45 |
| Number of Bays | 4 |
| Location | Surrey |



