Back to Three Bay Oak Garages with Upper Floors
Three Bay Oak Garages with Upper Floors - WS00077
This is a building we have previously constructed which you may want to use as a starting point for your design. All our buildings are designed and manufactured to your individual specifications.
Details
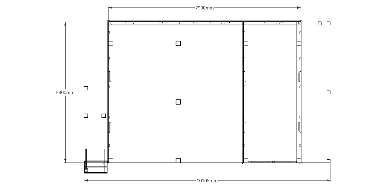
Three bay oak framed garage with external oak staircase leading up to the first floor. There are 2 open car bays and a smaller third bay with double doors on the front to make a secure workshop/storage area.
Dimensions
| G/F Area (sq m) | 52.78 |
| F/F Area (sq m) | 30.78 |
| Total Area (sq m) | 83.56 |
| Length (m) | 10.101 |
| Depth (m) | 5.8 |
| Ridge Height (m) | 5.5 |
| Roof Pitch (deg) | 50 |
| Number of Bays | 3 |
| Location | Berkshire |




