Back to Two Bay Oak Garages
Two Bay Oak Garages - WS00072
This is a building we have previously constructed which you may want to use as a starting point for your design. All our buildings are designed and manufactured to your individual specifications.
Details
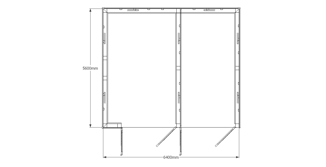
2 bay garage split into two secure parking bays with garage doors. Roof has an oak clock tower on top.
Dimensions
| G/F Area (sq m) | 35.84 |
| Total Area (sq m) | 35.84 |
| Length (m) | 6.4 |
| Depth (m) | 5.6 |
| Ridge Height (m) | 4.9 |
| Roof Pitch (deg) | 40 |
| Number of Bays | 2 |
| Location | Nottinghamshire |



