Back to Oak Framed Complexes
Oak Framed Complexes - WS00071
This is a building we have previously constructed which you may want to use as a starting point for your design. All our buildings are designed and manufactured to your individual specifications.
Details
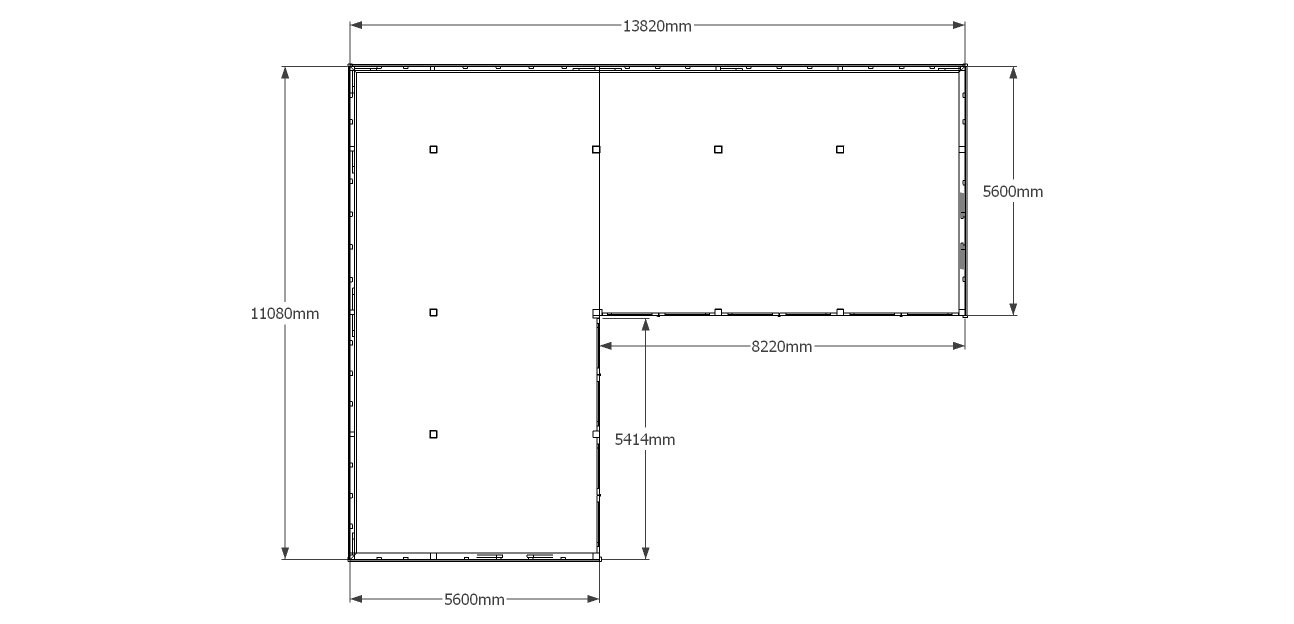
An ‘L’ shaped oak framed garage complex comprising of 5 car bays all with garage doors to make one complete secure area with a large workshop area in the corner.
Dimensions
| G/F Area (sq m) | 108.08 |
| Total Area (sq m) | 108.08 |
| Length (m) | 13.82 |
| Depth (m) | 11.08 |
| Ridge Height (m) | 4 |
| Roof Pitch (deg) | 40 |
| Number of Bays | 6 |
| Location | North Yorkshire |



