Back to Oak Barns
Oak Barns - WS00067
Also in: Oak Framed Complexes
Also in: Stables and Barns
This is a building we have previously constructed which you may want to use as a starting point for your design. All our buildings are designed and manufactured to your individual specifications.
Details
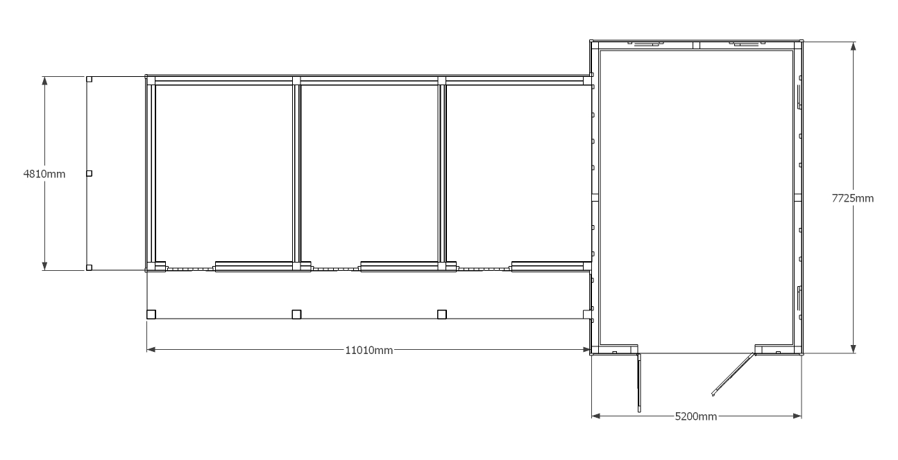
An oak framed stable complex comprising of three stables and a single enclosed garage.
Dimensions
| G/F Area (sq m) | 93.13 |
| Total Area (sq m) | 93.13 |
| Length (m) | 16.21 |
| Depth (m) | 7.725 |
| Ridge Height (m) | 4.9 |
| Roof Pitch (deg) | 35 |
| Number of Bays | 4 |
| Location | Lancashire |



