Back to Oak Framed Complexes
Oak Framed Complexes - WS00065
This is a building we have previously constructed which you may want to use as a starting point for your design. All our buildings are designed and manufactured to your individual specifications.
Details
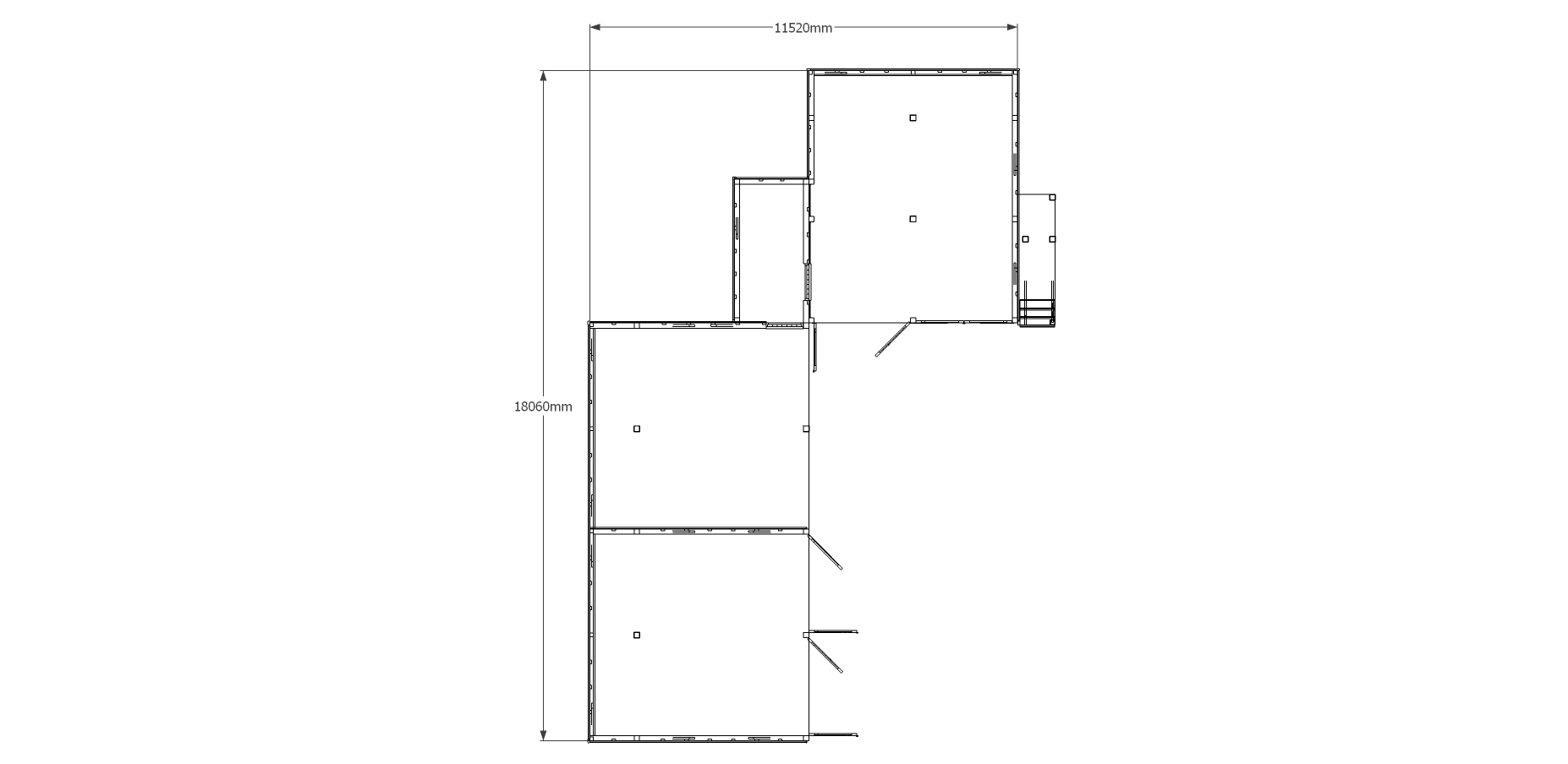
Oak framed complex with 6 garage bays, 4 with garage doors. A small workshop/store area and 2 bays have a first floor over which is accessed via an external oak staircase.
Dimensions
| G/F Area (sq m) | 112.41 |
| F/F Area (sq m) | 21.36 |
| Total Area (sq m) | 133.77 |
| Length (m) | 18.06 |
| Depth (m) | 12.53 |
| Ridge Height (m) | 5.3 |
| Roof Pitch (deg) | 45 |
| Number of Bays | 6 |
| Location | Essex |






