Back to Two Bay Oak Garages with Upper Floors
Two Bay Oak Garages with Upper Floors - WS00057
This is a building we have previously constructed which you may want to use as a starting point for your design. All our buildings are designed and manufactured to your individual specifications.
Details
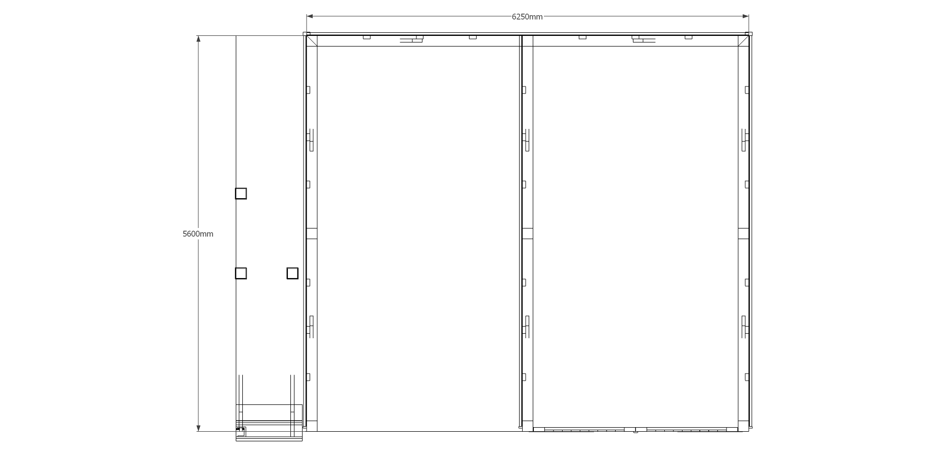
Oak framed Two bay garage with one bay enclosed with garage doors. Oak staircase leading to first floor room with one dormer window.
Dimensions
| G/F Area (sq m) | 35 |
| F/F Area (sq m) | 22.5 |
| Total Area (sq m) | 57.5 |
| Length (m) | 6.25 |
| Depth (m) | 5.6 |
| Ridge Height (m) | 5.3 |
| Roof Pitch (deg) | 45 |
| Number of Bays | 2 |
| Location | Nottinghamshire |





