Back to Home Leisure Buildings
Home Leisure Buildings - WS00056
This is a building we have previously constructed which you may want to use as a starting point for your design. All our buildings are designed and manufactured to your individual specifications.
Details
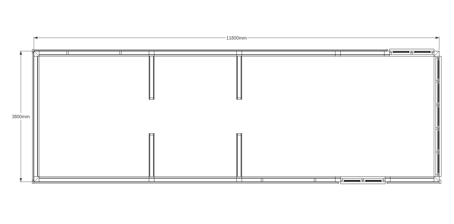
A building to go in the garden to incorporate a garden room, workshop and store area.
Dimensions
| G/F Area (sq m) | 44.84 |
| Total Area (sq m) | 44.84 |
| Length (m) | 11.8 |
| Depth (m) | 3.8 |
| Ridge Height (m) | 4 |
| Roof Pitch (deg) | 40 |
| Number of Bays | 4 |
| Location | East Sussex |




