Oak Framed Houses - WS00054
This is a building we have previously constructed which you may want to use as a starting point for your design. All our buildings are designed and manufactured to your individual specifications.
Details
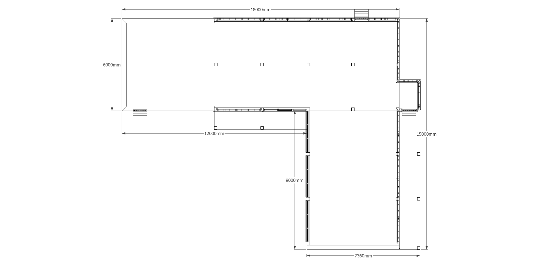
An L-shaped house designed for a customer who wanted a large light and airy living space provided by an open vaulted lounge with large glazed units all along one side including a stunning glazed gable area and vaulted landing overlooking at the top of the stairs. The upstairs area is provided by a sling brace design with a feature balcony running around two sides of the master bedroom making use of the beautiful views over the South Downs. Dormer windows and rooflights both provide additional natural light to the upper floor.
Dimensions
| G/F Area (sq m) | 176 |
| F/F Area (sq m) | 72 |
| Total Area (sq m) | 248 |
| Length (m) | 18 |
| Depth (m) | 15 |
| Ridge Height (m) | 7.4 |
| Roof Pitch (deg) | 50 |
| Number of Bays | 9 |
| Location | West Sussex |
| Ridge Height (m) | Sling Brace |






