Back to Something Different
Something Different - WS00051
This is a building we have previously constructed which you may want to use as a starting point for your design. All our buildings are designed and manufactured to your individual specifications.
Details
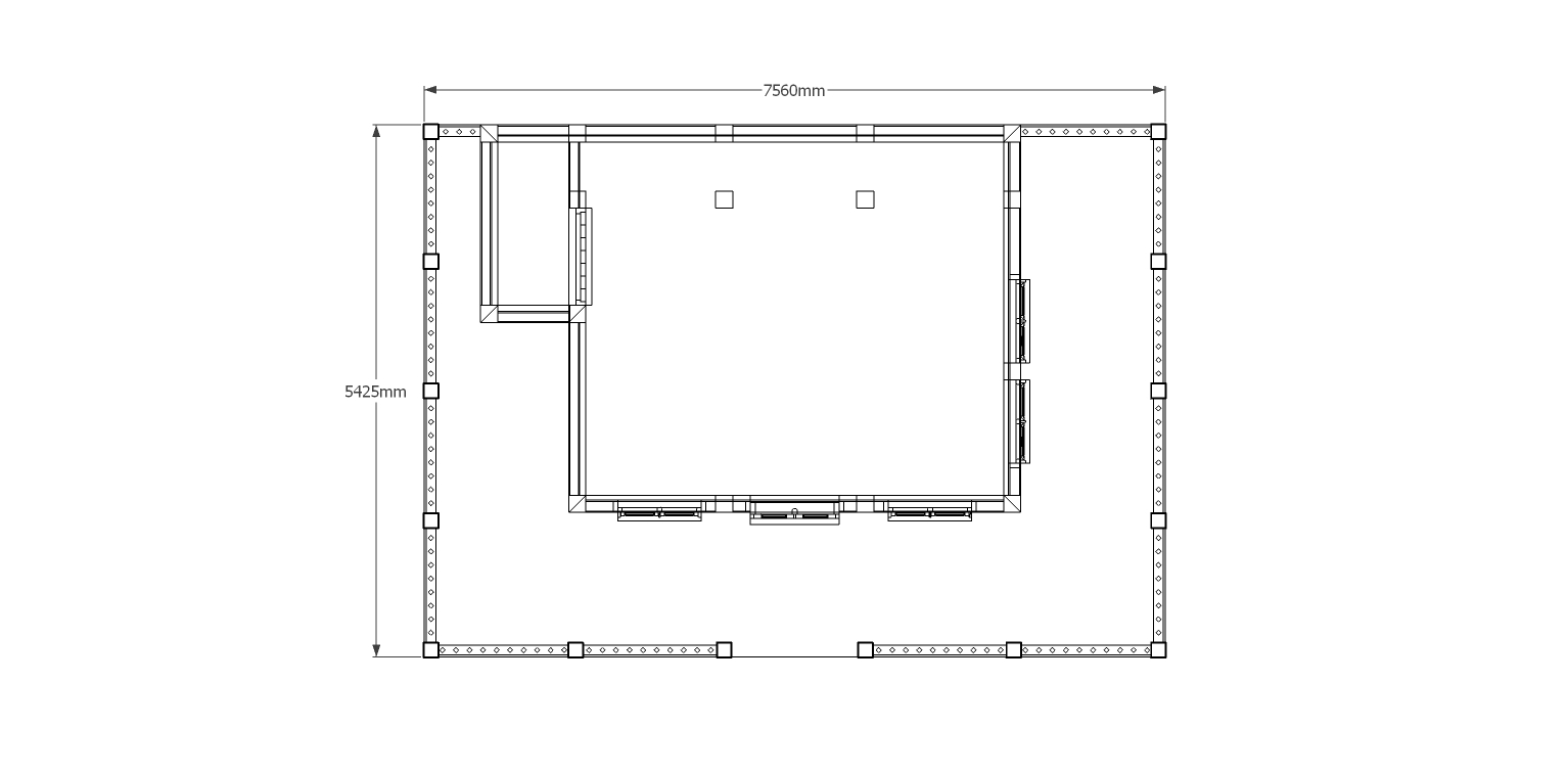
A 3 bay central building with covered areas and balustrading on 3 sides.
Dimensions
| G/F Area (sq m) | 40.98 |
| Total Area (sq m) | 40.98 |
| Length (m) | 7.56 |
| Depth (m) | 5.42 |
| Ridge Height (m) | 3.9 |
| Roof Pitch (deg) | 13 |
| Number of Bays | 3 |
| Location | West Sussex |




