Commercial Buildings - WS00048
This is a building we have previously constructed which you may want to use as a starting point for your design. All our buildings are designed and manufactured to your individual specifications.
Details
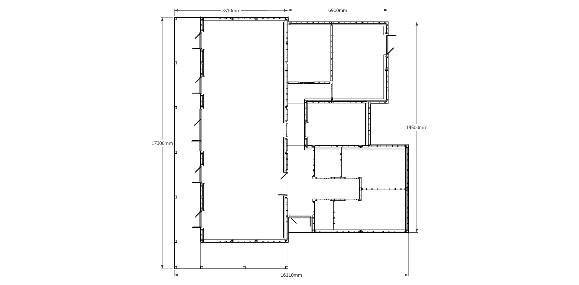
This oak framed building was designed as a village hall. It is formed of four seperate frames, the first is a large five bay building with an open logstore to the front. Each bay has a set of full length opening garden windows to the front. On the first floor there is a four pane window to the right side and an open logstore. The other three bays are attached to the main building to provide another meeting room, a store, a kitchen and toilets. The main building has trimming for five rooflights to let in the maximum amount of natural light.
Dimensions
| G/F Area (sq m) | 228 |
| Total Area (sq m) | 228 |
| Length (m) | 17.3 |
| Depth (m) | 16.11 |
| Ridge Height (m) | 7.3 |
| Roof Pitch (deg) | 45 |
| Number of Bays | 11 |
| Location | Suffolk |






