Oak Framed Houses - WS00047
This is a building we have previously constructed which you may want to use as a starting point for your design. All our buildings are designed and manufactured to your individual specifications.
Details
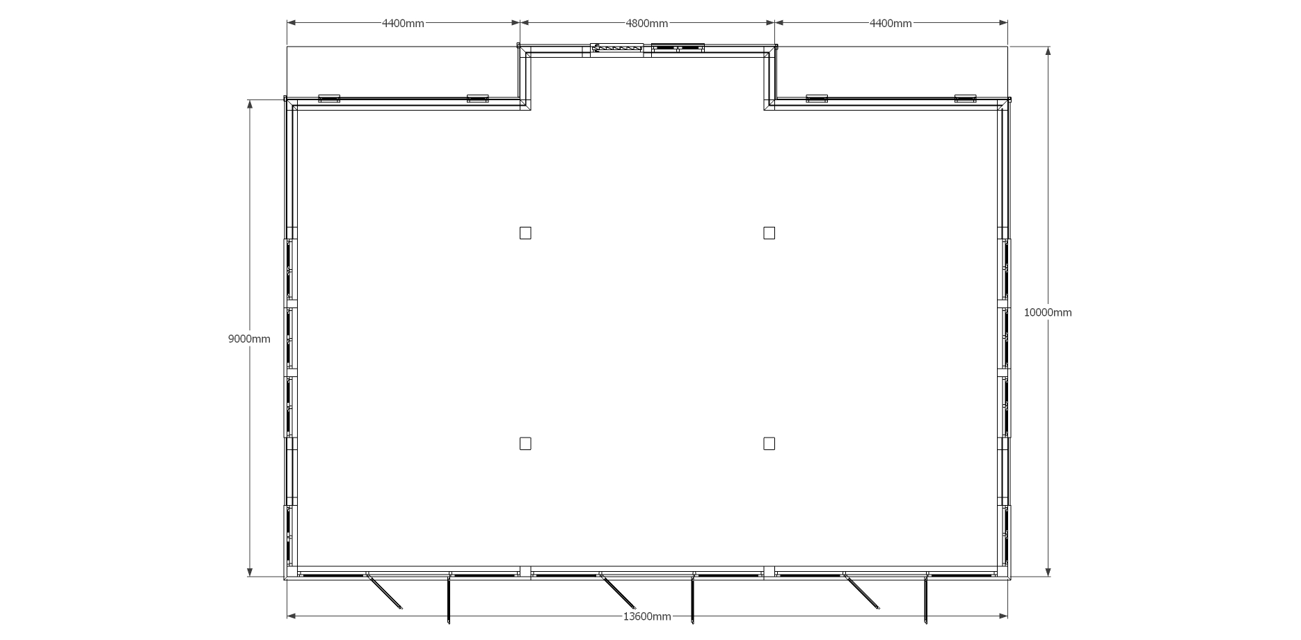
An 3 bay sling brace style oak framed two storey house designed for a customer in Kent. With much of the ground floor having full height glazing, this makes for a light and airy feel to the building and lends itself well to an open plan design for the downstairs area. The 45 degree pitch combined with the sling brace design not only gives great use of the upper floor area but also provides a stunning vaulted roof creating a sense of open space. Additional natural light is given from the rooflights in the upper floor.
Dimensions
| G/F Area (sq m) | 127.2 |
| F/F Area (sq m) | 98 |
| Total Area (sq m) | 225.2 |
| Length (m) | 13.6 |
| Depth (m) | 10 |
| Ridge Height (m) | 8.5 |
| Roof Pitch (deg) | 45 |
| Number of Bays | 3 |
| Location | Kent |
| Ridge Height (m) | Two Storey |





