Oak Framed Houses - WS00045
This is a building we have previously constructed which you may want to use as a starting point for your design. All our buildings are designed and manufactured to your individual specifications.
Details
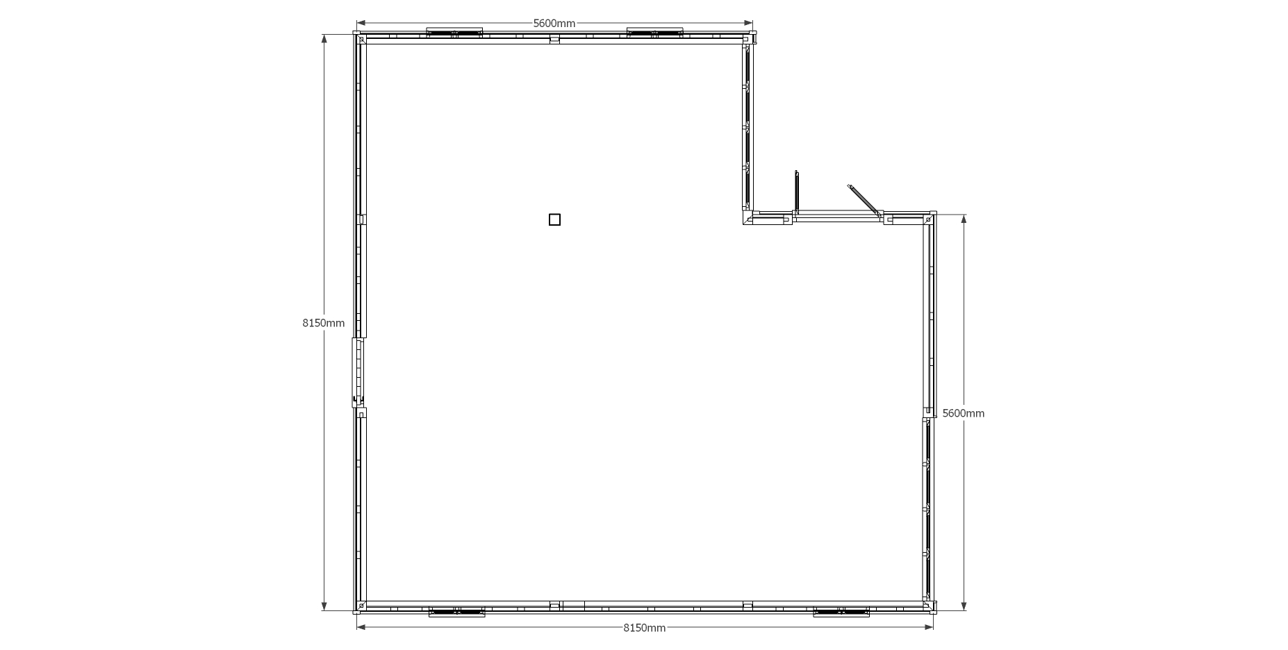
This oak framed house was designed for a customer in Belgium and is comprised of two frames. The first frame has three bays and the roof endings are both gables, with four full length garden room windows to the right side, and a single solid door to the left. There is also a pair of opening garden room doors to the front. The second frame is a single bay, attached at the left hand end and with a gable end to the right. The rear of this frame has four full length garden room windows. Each gable roof end has a two pane window.
Dimensions
| G/F Area (sq m) | 59.92 |
| F/F Area (sq m) | 38.52 |
| Total Area (sq m) | 98.44 |
| Length (m) | 8.15 |
| Depth (m) | 8.15 |
| Ridge Height (m) | 5.25 |
| Roof Pitch (deg) | 45 |
| Number of Bays | 4 |
| Location | Belgium |







