Back to Oak Framed Houses
Oak Framed Houses - WS00044
This is a building we have previously constructed which you may want to use as a starting point for your design. All our buildings are designed and manufactured to your individual specifications.
Details
This oak framed house has three bays and a low brick wall to all sides of the building. The front of the house is fully glazed with full length opening garden room windows and the front wall is set back slightly, giving a porch effect. The first floor has two sets of dormers with two pane windows to allow for lots of natural light, and there is trimming for two rooflights to the rear.
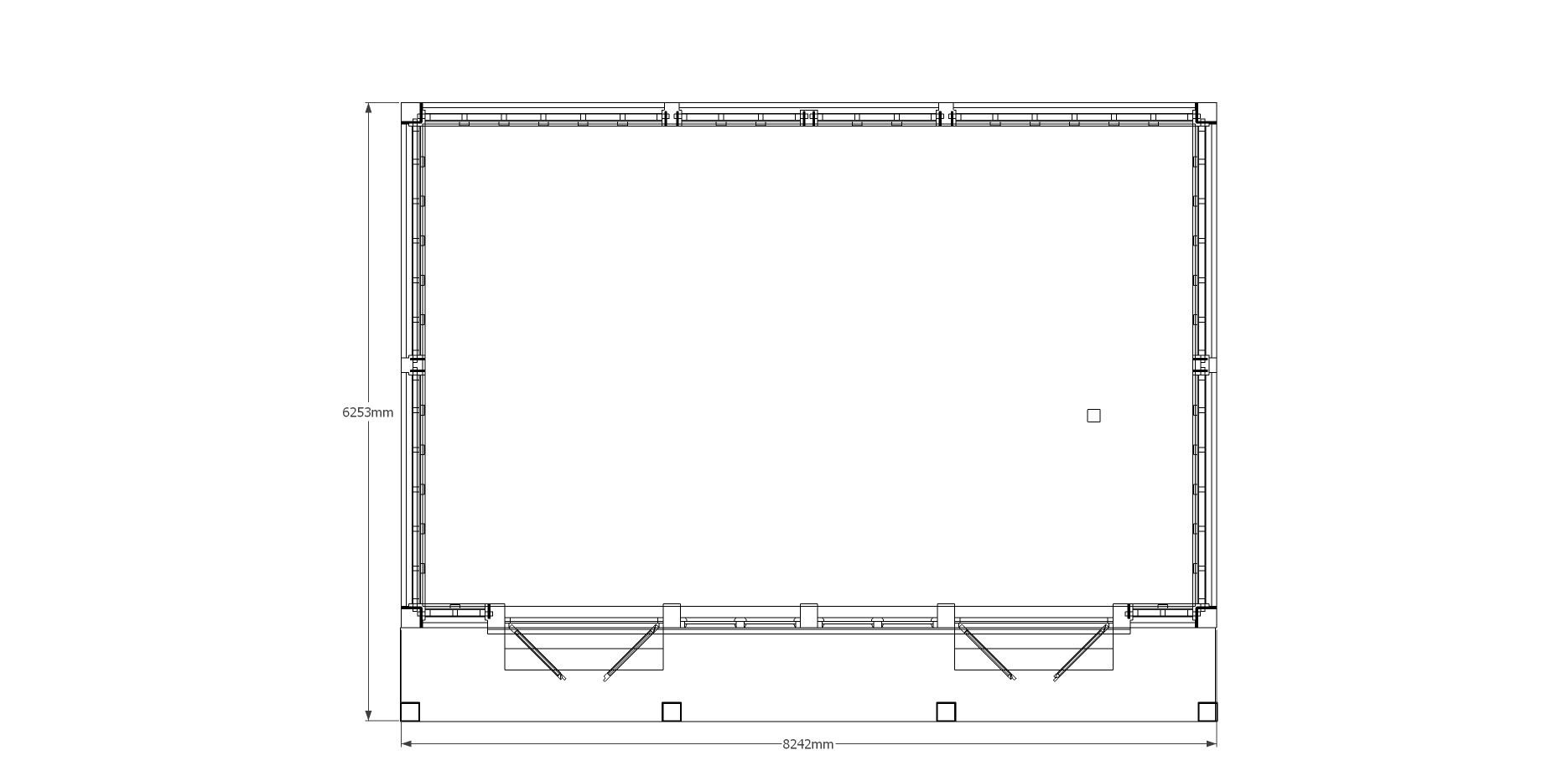
Dimensions
| G/F Area (sq m) | 51.54 |
| F/F Area (sq m) | 21.95 |
| Total Area (sq m) | 73.49 |
| Length (m) | 8.242 |
| Depth (m) | 6.253 |
| Ridge Height (m) | 6.2 |
| Roof Pitch (deg) | 45 |
| Number of Bays | 3 |
| Location | Leicestershire |






