Back to Oak Framed Houses
Oak Framed Houses - WS00043
This is a building we have previously constructed which you may want to use as a starting point for your design. All our buildings are designed and manufactured to your individual specifications.
Details
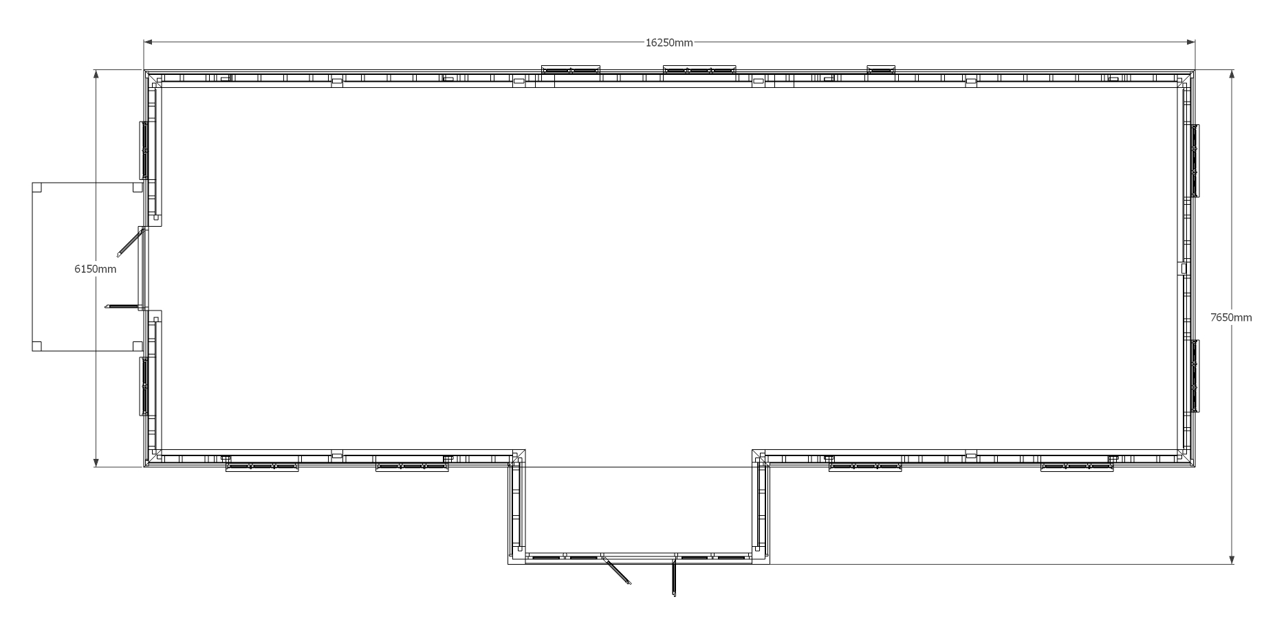
This oak framed house was designed for a customer in Suffolk and has five main bays and one barn entrance to the front. The barn entrance has full length windows to the first floor and opening windows to the ground floor, providing an airy and open plan interior. On the first floor there are trimmings for nine rooflights to provide plenty of natural light to the upstairs, and to the left hand side there is a feature balcony for the master bedroom, accessed by a pair of opening garden room windows.
Dimensions
| G/F Area (sq m) | 106.01 |
| F/F Area (sq m) | 70.51 |
| Total Area (sq m) | 176.52 |
| Length (m) | 17.975 |
| Depth (m) | 7.65 |
| Ridge Height (m) | 6.6 |
| Roof Pitch (deg) | 45 |
| Number of Bays | 6 |
| Location | Suffolk |






