Oak Framed Houses - WS00037
This is a building we have previously constructed which you may want to use as a starting point for your design. All our buildings are designed and manufactured to your individual specifications.
Details
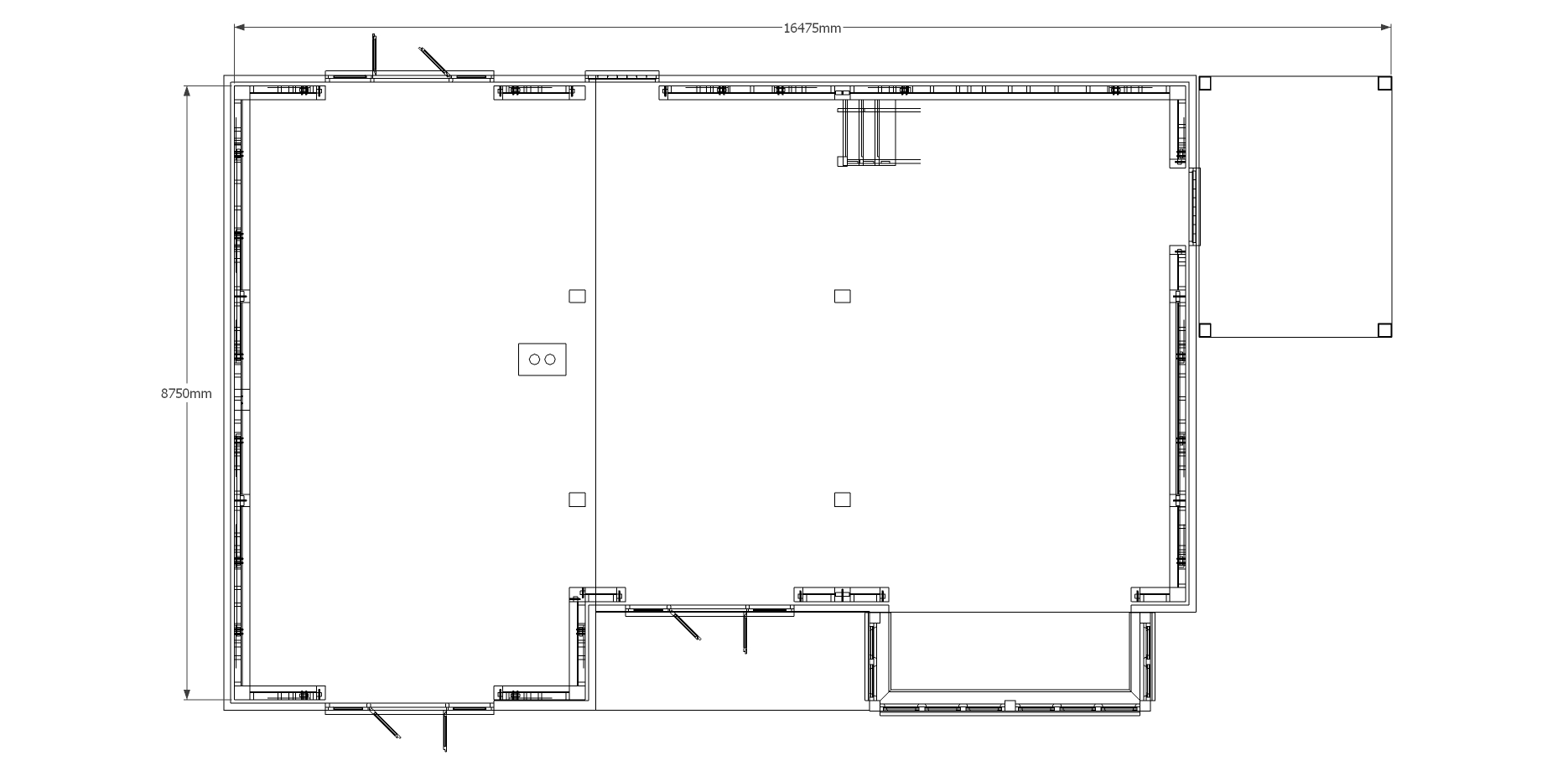
This U-shaped oak framed house shows how an oak frame can be used in combination with brickwork with the entire ground floor exterior being in brick while retaining the classic features of an oak frame on the inside with weatherboard exterior finish to the upper floor. An extended canopy over the front door gives a welcoming covered shelter and the one and a half storey type construction (similar to the sling brace design) makes excellent use of the upper floor area giving more head-room upstairs. Rooflights provide additional natural light and ventilation into the upper floor area.
Dimensions
| G/F Area (sq m) | 123.72 |
| F/F Area (sq m) | 62.62 |
| Total Area (sq m) | 186.34 |
| Length (m) | 16.475 |
| Depth (m) | 8.75 |
| Ridge Height (m) | 6.5 |
| Roof Pitch (deg) | 45 |
| Number of Bays | 8 |
| Location | West Sussex |
| Ridge Height (m) | Sling Brace |










