Back to Oak Framed Houses
Oak Framed Houses - WS00033
This is a building we have previously constructed which you may want to use as a starting point for your design. All our buildings are designed and manufactured to your individual specifications.
Details
An oak framed house designed with 2 glazed gable areas and multiple rooflights to bring plenty of light into the building and get the best out of the views. The steep 50 degree pitch also gives greater use of the upper floor area and by branching off the house in a T-shape this gives a clever way to separate kitchen or more functional areas from the living space.
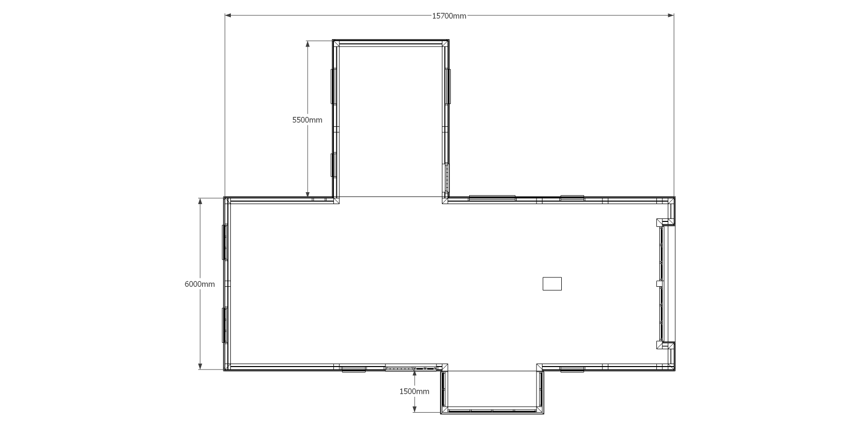
Dimensions
| G/F Area (sq m) | 125.98 |
| F/F Area (sq m) | 65.61 |
| Total Area (sq m) | 191.59 |
| Length (m) | 16.2 |
| Depth (m) | 11.55 |
| Ridge Height (m) | 13.05 |
| Roof Pitch (deg) | 50 |
| Number of Bays | 8 |
| Location | East Sussex |





