Back to Oak Framed Extensions
Oak Framed Extensions - WS00031
Also in: Oak lean to
Also in: Two Bay Oak Garages
This is a building we have previously constructed which you may want to use as a starting point for your design. All our buildings are designed and manufactured to your individual specifications.
Details
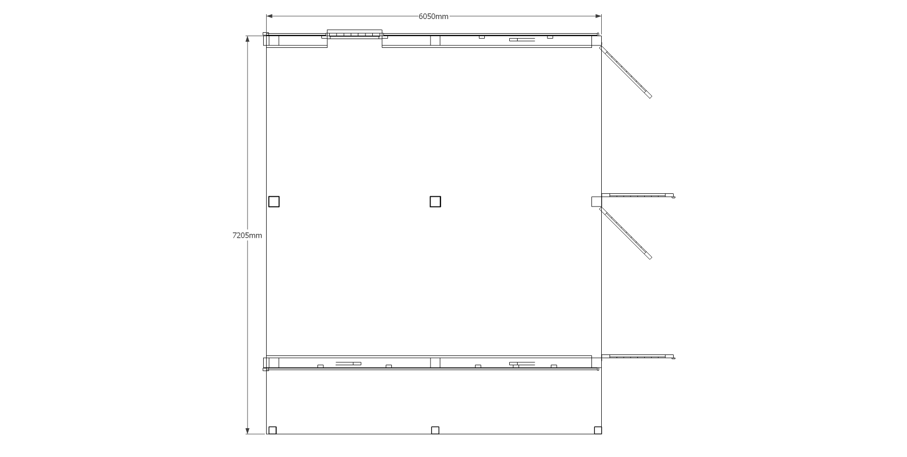
Two bay garage extension to existing building. 2 pairs of garage doors and a log store down one side.
Dimensions
| G/F Area (sq m) | 43.56 |
| Total Area (sq m) | 43.56 |
| Length (m) | 6.05 |
| Depth (m) | 7.2 |
| Ridge Height (m) | 5.3 |
| Roof Pitch (deg) | 40 |
| Number of Bays | 2 |
| Location | Northumberland |






