Back to Oak Barns
Oak Barns - WS00029
Also in: Oak Framed Complexes
Also in: Stables and Barns
This is a building we have previously constructed which you may want to use as a starting point for your design. All our buildings are designed and manufactured to your individual specifications.
Details
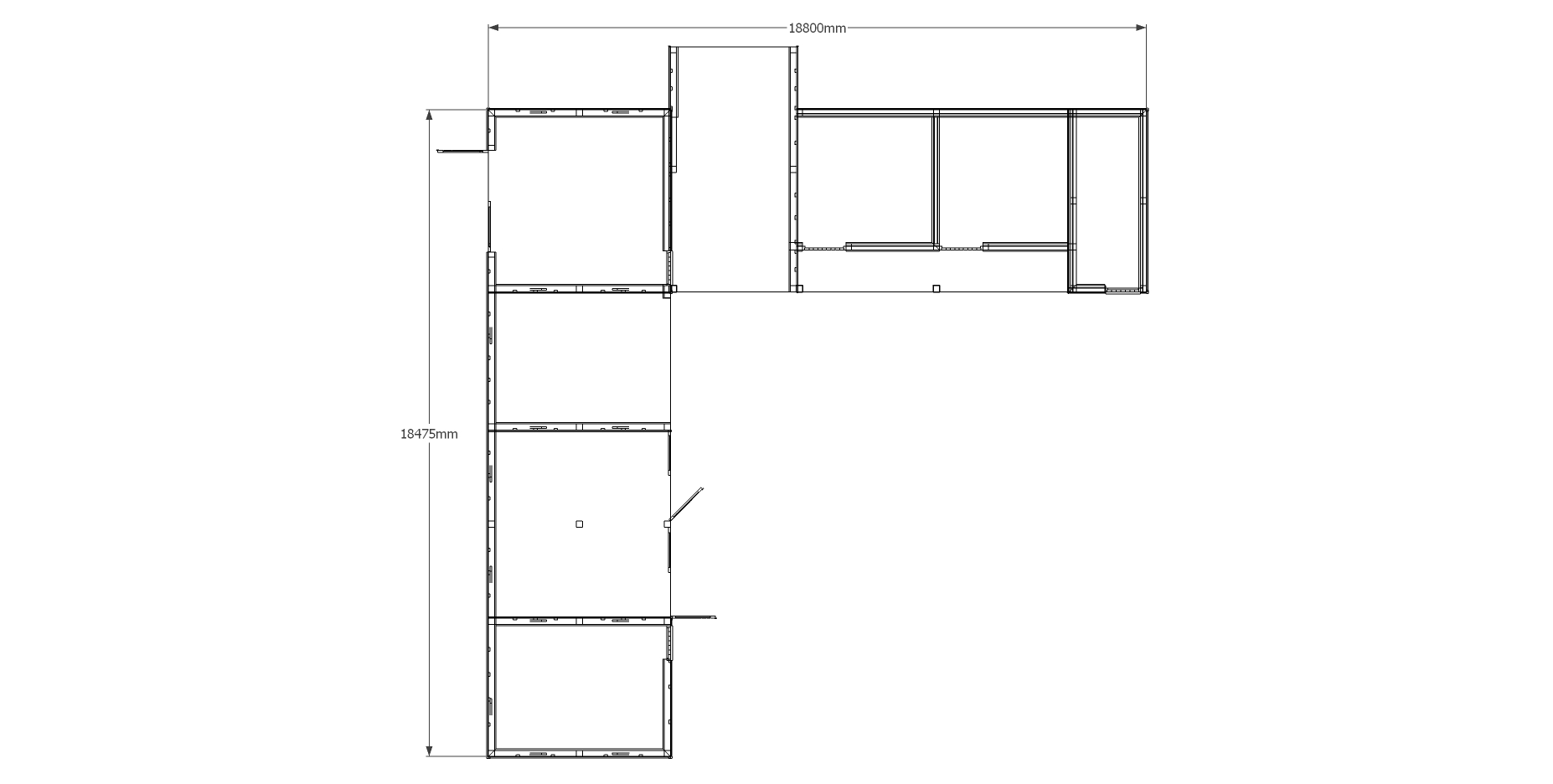
Stable and garage complex consisting of 2 stables, tack room, two enclosed garage bays with a further one open garage bay and 2 large storage areas and a drive through.
Dimensions
| G/F Area (sq m) | 200.31 |
| Total Area (sq m) | 200.31 |
| Length (m) | 18.8 |
| Depth (m) | 18.475 |
| Ridge Height (m) | 4.8 |
| Roof Pitch (deg) | 40 |
| Number of Bays | 9 |
| Location | Kent |





