Back to Oak Framed Complexes
Oak Framed Complexes - WS00020
This is a building we have previously constructed which you may want to use as a starting point for your design. All our buildings are designed and manufactured to your individual specifications.
Details
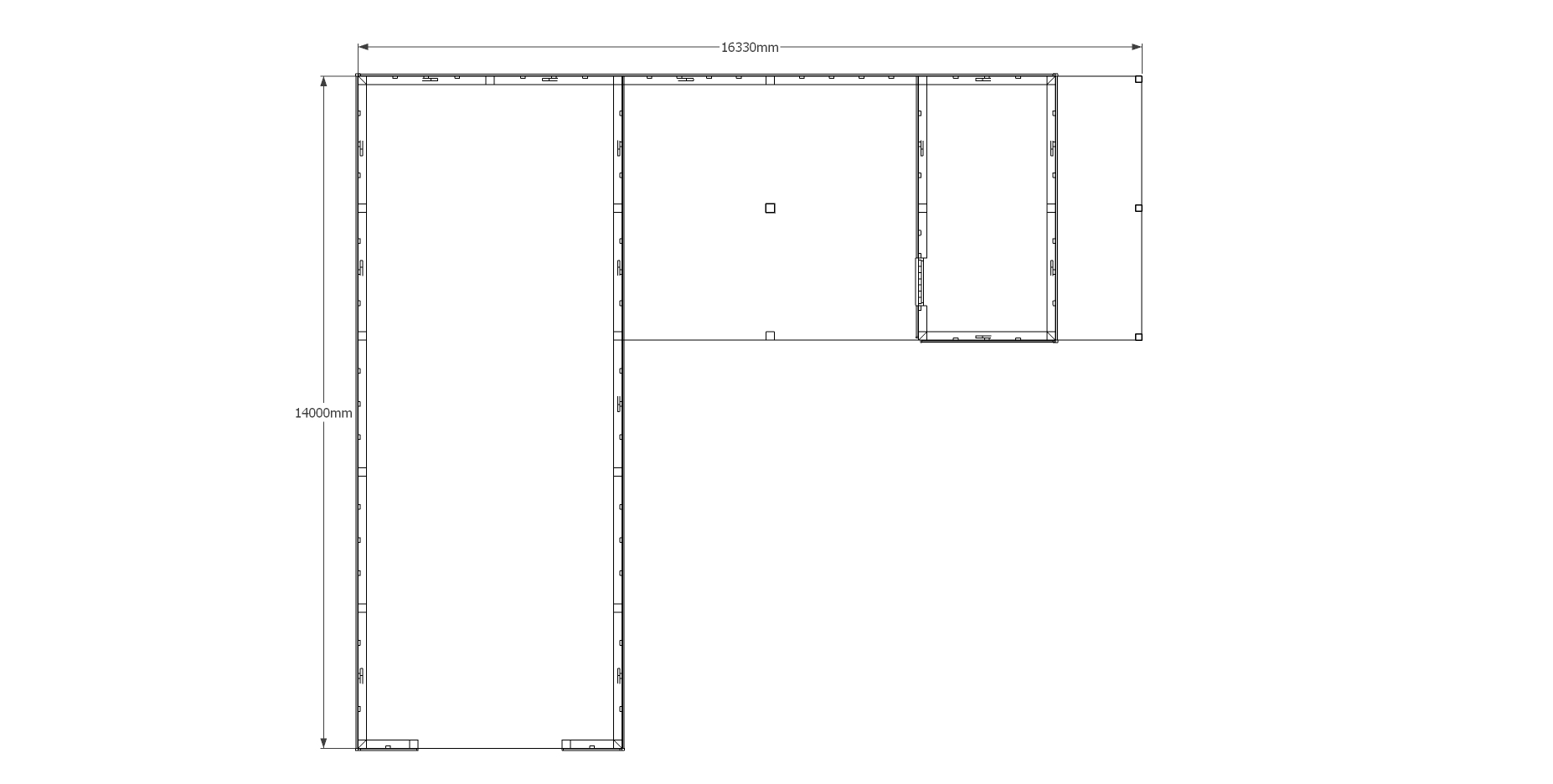
An L-shaped complex with a long single garage with another 2 car spaces and an enclosed bay for a workshop or storeroom
Dimensions
| G/F Area (sq m) | 137.5 |
| Total Area (sq m) | 137.5 |
| Length (m) | 14 |
| Depth (m) | 16.33 |
| Ridge Height (m) | 5.3 |
| Roof Pitch (deg) | 40 |
| Number of Bays | 8 |
| Location | Shropshire |




