Back to Three Bay Oak Garages with Upper Floors
Three Bay Oak Garages with Upper Floors - WS00016
This is a building we have previously constructed which you may want to use as a starting point for your design. All our buildings are designed and manufactured to your individual specifications.
Details
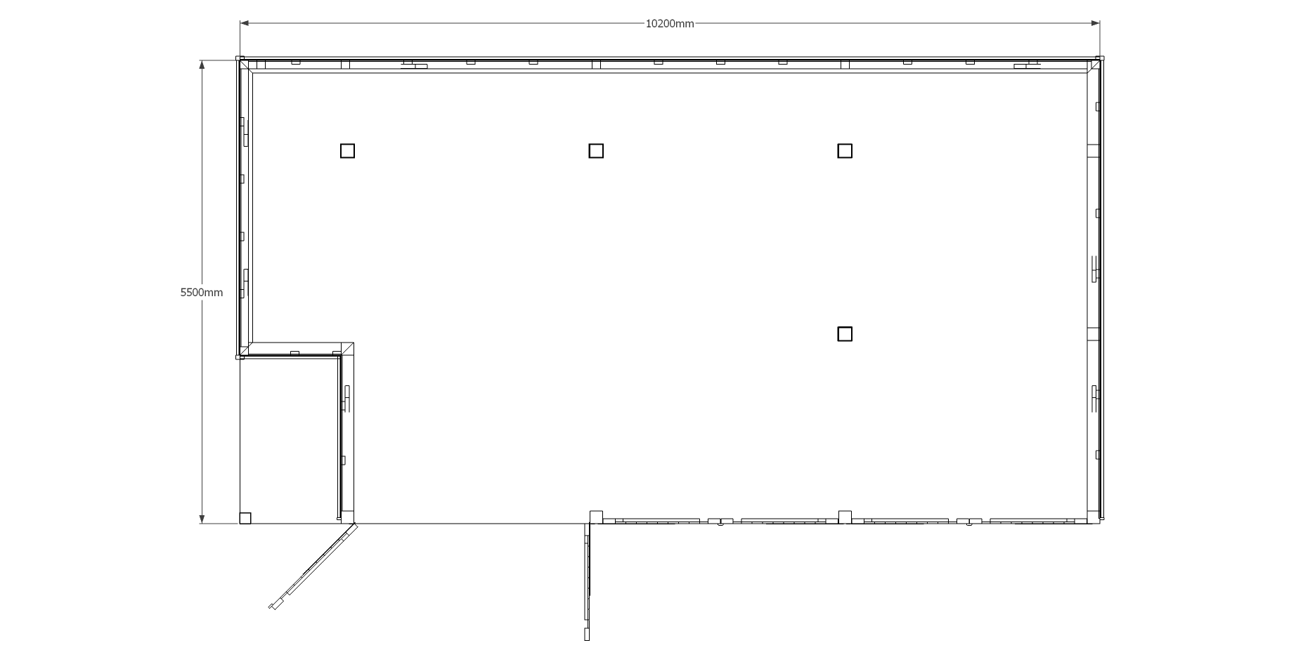
3 bay garage enclosed with garage doors. The first floor is for storage and reached via a hatch. There is a catslide on the left for both internal use and external log store.
Dimensions
| G/F Area (sq m) | 56.1 |
| F/F Area (sq m) | 20.08 |
| Total Area (sq m) | 76.18 |
| Length (m) | 10.2 |
| Depth (m) | 5.5 |
| Ridge Height (m) | 4.7 |
| Roof Pitch (deg) | 45 |
| Number of Bays | 3 |
| Location | East Sussex |







