Back to Oak Barns
Oak Barns - WS00014
Also in: Oak Framed Complexes
Also in: Stables and Barns
This is a building we have previously constructed which you may want to use as a starting point for your design. All our buildings are designed and manufactured to your individual specifications.
Details
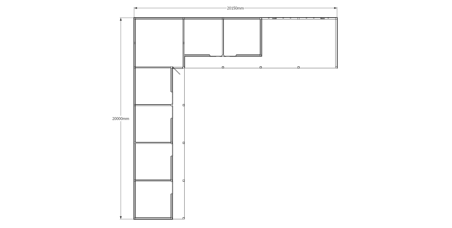
An L-shaped stable complex with 6 loose boxes, one tack room and 2 bays for storing hay and larger equipment.
Dimensions
| G/F Area (sq m) | 175.9 |
| Total Area (sq m) | 175.9 |
| Length (m) | 20 |
| Depth (m) | 20.15 |
| Ridge Height (m) | 3.7 |
| Roof Pitch (deg) | 25 |
| Number of Bays | 9 |
| Location | Northumberland |






