Back to Four Bays and Upwards
Four Bays and Upwards - WS00011
This is a building we have previously constructed which you may want to use as a starting point for your design. All our buildings are designed and manufactured to your individual specifications.
Details
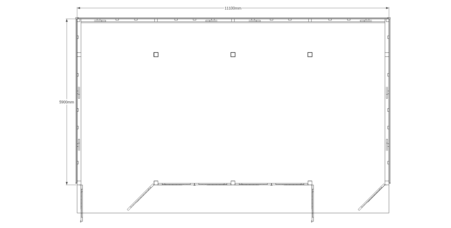
Four bay garage with rear catslide. All 4 bays have garage doors to keep the inside secure.
Dimensions
| G/F Area (sq m) | 65.49 |
| Total Area (sq m) | 65.49 |
| Length (m) | 11.1 |
| Depth (m) | 5.9 |
| Ridge Height (m) | 4.4 |
| Roof Pitch (deg) | 40 |
| Number of Bays | 4 |
| Location | Oxfordshire |






