Back to Four Bays And Upwards with Upper Floors
Four Bays And Upwards with Upper Floors - WS00001
This is a building we have previously constructed which you may want to use as a starting point for your design. All our buildings are designed and manufactured to your individual specifications.
Details
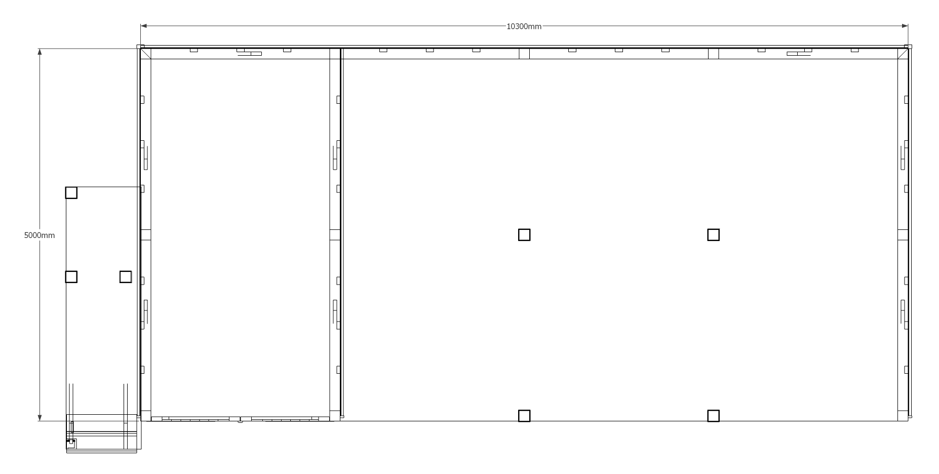
Four bay garage with 3 open bays and 1 enclosed with garage doors and a weatherboarded partition. External oak staircase to first floor, roof finished with natural slates and incorporating rooflights for added light.
Dimensions
| G/F Area (sq m) | 51.5 |
| F/F Area (sq m) | 30.9 |
| Total Area (sq m) | 82.4 |
| Length (m) | 10.3 |
| Depth (m) | 5 |
| Ridge Height (m) | 5.4 |
| Roof Pitch (deg) | 50 |
| Number of Bays | 4 |
| Location | Manchester |




